Pisikese korteri geniaalsed planeerimisnipid Reet Helisabeth Karmilt
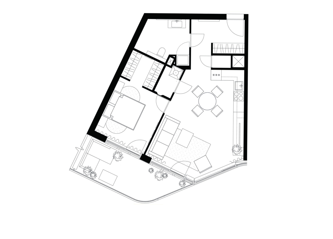
Ülimalt kompaktne ja terviklik läbiva kujundusliku joonega väike korter, kuhu sai kõik funktsioonid, mida inimene vajab, mahutatud koos kolme panipaigaga. Kuidas avaruse tuned tekitamine nii hästi sai õnnestuda?
Eritellimusmööbel, struktuurvärviga värvitud mööbliuksed: Heraxs
Mööbliplaat MDF, laminaat Egger: Puumerkki
Köögivalamu ja segisti: Franke
Söögilaua toolid, diivan ja tugitool: Nordin
Kardinad ja aknakatted: Smartex
Vaip: BoConcept
Valgustid: Moodne Valgustus
Siinselt kodult sai nii palju kujunduslikult tahetud, kui üldse vist võimalik on. Väike, aga avar; elegantne, aga vastupidavatest ja kergesti puhastatavatest materjalidest, samas heas hinnaklassis! Pidi olema valgusküllane, aga valgusallikaid ei tohtinud näha olla. Köök pidi kaunis välja nägema ja elutoa suunas ja minema üle elutoaks. Et köögiuksed vastaksid nõudmistele, st oleksid vähe määrduvad ja niiskusele mitte vastuvõtlikud, värvis mööblifirma Heraxs need spetsiaalse granuleeritud värviga.
Värv muudab mateeritud pinna pisut reljeefseks, mis ongi määrdumisvastase efekti saladus.
See on ka vastupidavuse garantii: selle värviga profiiluksed on väga vastupidavad kulumisele ja löökidele.
Kuna korter on väike, mindi samade materjalidega lõpuni. Eritellimusmööbel tehti samadest materjalidest ka magamistuppa, garderoobi.
Isegi köögilaud valmistati eritellimusel, kuna täpselt õiges formaadis lauda kaubandusvõrgust leida polnud võimalik.
Sametise pehme mööbli järgi valiti ka kardinakangad. Nii saavutati trerviklik rahulik lõpptulemus ja avar tunne.
Pisikese korteri geniaalsed planeerimisnipid Reet Helisabeth Karmilt
Postitatud: 24.09.2018
Galerii
Vaata teisi sarnaseid saateid

20.05.2020
Jaapanipärane esteetika, puhas minimalistlik vormikeel, erilised valguslahendused ning automaatika
Siin on kodu, mis „hingab“ koos inimesega. Valgustus, sisekliima ja helitaust on seadistatud vastavalt elanike soovidele. Õueruumi valguse ööpäevarütmile reageerivad ruumis nii valgustid kui ka aknakatted.

26.02.2019
Ajatu modernism. Lihtsad jooned ja vormid, aegumatud materjalid.
Arhitekt Kaspar Kruuse loodud õueruumiga sujuvalt integreeritud talveaiaga aegumatu hoonekompleksi väärilise sisealhenduse eest hoolitses sisearhitekt Hannelore Kääramees. Õueruumi lahendas maastikuarhitekt Ülle Grishakov. Suurepärased vaated, hästi lahendatud akustikateemad, looduslikud materjalid, terrassaiad ning kvaliteetne sisseehitatud mööbel, nagu maailma tippklassika köögimööbel Poggen Pohlilt ja garderoob EGO-lt, teevad sellest aegumatu kodu, mis läheb ajas ainult mõnusamaks. Maastikku on kaunilt sulatatud ka viljaaiaalad ja aiakahjurite eest hoolitseb kanatraktor, kust tulevad ka värsked munad pererahva lauale.

08.03.2017
Avatud planeeringuga köök – Sirje Kadalipp
Kogenud sisekujundaja kodune köök: Millise köögi on Sirje Kadalipp teinud iseendale?







