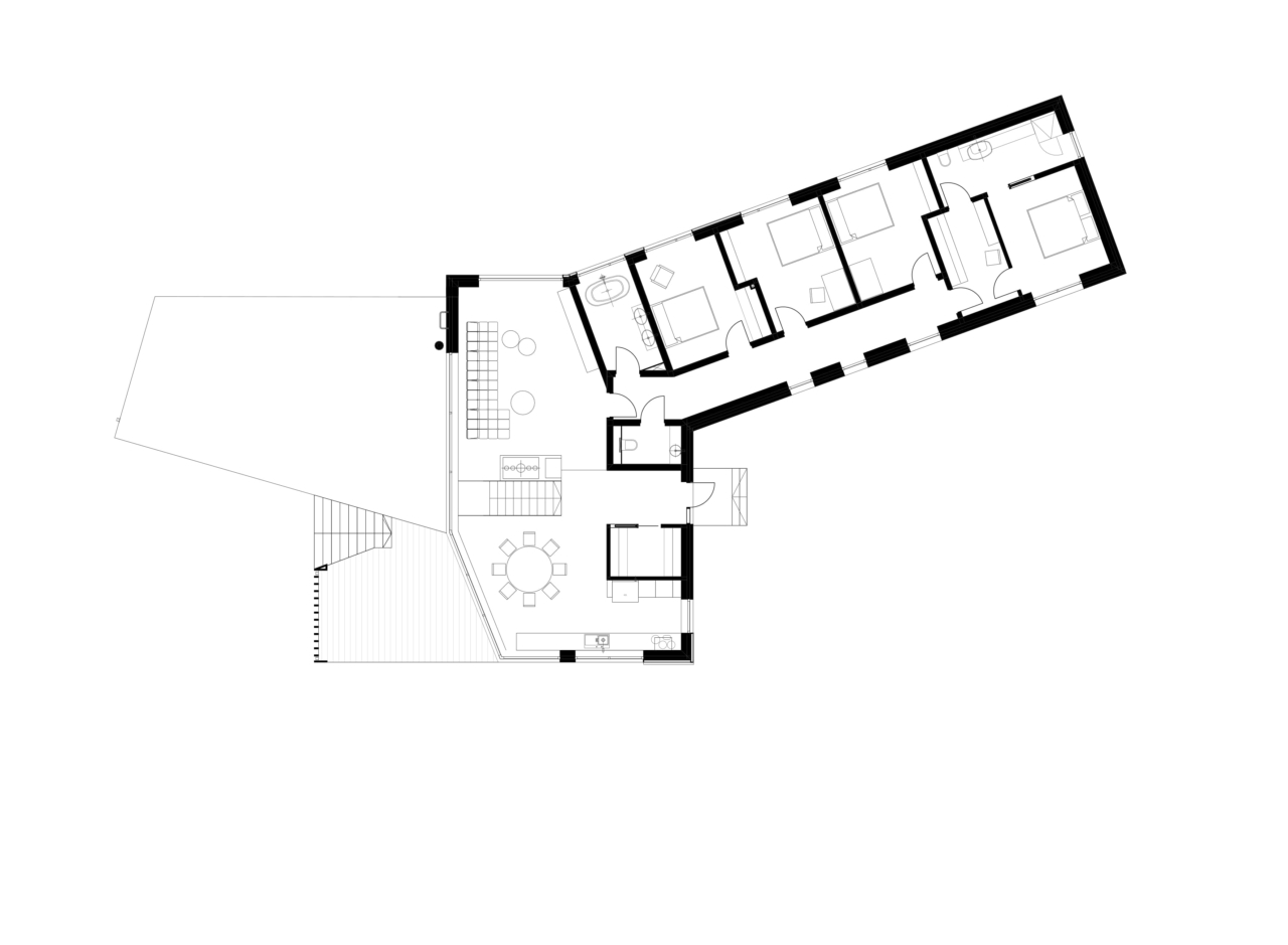
Kolme tiivaga eramu kuppelmaastikus: Lauri Nõmme
Arhitektuur ja sisearhitektuur ühe inimese sulest: nii sündis täiuslik tervik. Hea näide, kuidas arhitektuur suhestub looduse ja pinnavormidega. Kolme tiivaga eramus on erinevad hoone funktsioonid koondatud erinevatesse tiibadesse. See annab mugavusele, akustikale olulise eelise. Peale kauni ja tasakaalustatud disaini on siin palju nippe, mida tasub põhjalikumalt uudistada eritellimusmööblist viimislusmaterjalide valikuni ja valgustuslahenduseni.
Eritellimusmööbel ja siseuksed: Hanson Mööbel +372 5221879
Valguslahendused: Hele Valgus
Puitpõrandad: RM Stuudio
Diivanid: Inspira
Kardinad ja aknakatted: Smartex
Vannitubade segistid ja sanitaarkeraamika: SPA Sanitaartehnika
Efektvärvid magamistubades: Stelling
Suveköögi põrand: The Surface Company OÜ
Vaata teisi sarnaseid saateid

12.02.2019
Viktoria Bankovi kujundatud luksuslik merevaatega korter
Külluslike värvi-ja mustriaktsentidega korter luksuslikus kortermajas: sisearhitekt napsas fassaadi volüümikad vormid tuppa korduma. Tapeet vannitoas, asised panipaigad ja soliidne kabinet. Detailideni läbi mõeldud funktsionaalsus – näiteks on ka pimedas lülitite asukohad näha. Põnev vaatamine!

24.09.2018
Pisikese korteri geniaalsed planeerimisnipid Reet Helisabeth Karmilt
Ülimalt kompaktne ja terviklik läbiva kujundusliku joonega väike korter, kuhu sai kõik funktsioonid, mida inimene vajab, mahutatud koos kolme panipaigaga. Kuidas avaruse tuned tekitamine nii hästi sai õnnestuda?

16.02.2018
Tark investeering: madalad kodukulud ja tervislik kodu
Madalad kodukulud on kahtlemata üks osa targast investeeringust. Kas tõesti selline hea hinnaga kodu, mida peab üsna kohe








